Pređi na glavni sadržaj
Preskoči na podnožje
+381 69 30 30 004
English
O nama
Lokacija
Apartmani
Poslovni prostor
Materijali
Sadržaji
Turistički potencijal
Galerija
Kontakt
Investitor
O nama
Lokacija
Apartmani
Poslovni prostor
Materijali
Sadržaji
Turistički potencijal
Galerija
Kontakt
Investitor
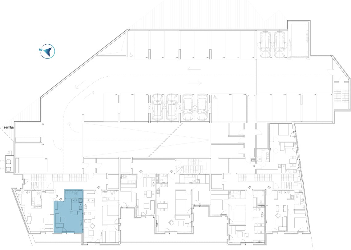
TIP 2
L 1.2 - jednosoban
Pozicija stana - Suteren
Osnova stana
Prostorije
1. HODNIK
4.18 m
2
2. DNEVNI BORAVAK + TRPEZARIJA
18,30 m
2
3. KUHINJA
3,28 m
2
4. KUPATILO
3,73 m
2
29,50 m
2