Pređi na glavni sadržaj
Preskoči na podnožje
+381 69 30 30 004
English
O nama
Lokacija
Apartmani
Poslovni prostor
Materijali
Sadržaji
Turistički potencijal
Galerija
Kontakt
Investitor
O nama
Lokacija
Apartmani
Poslovni prostor
Materijali
Sadržaji
Turistički potencijal
Galerija
Kontakt
Investitor
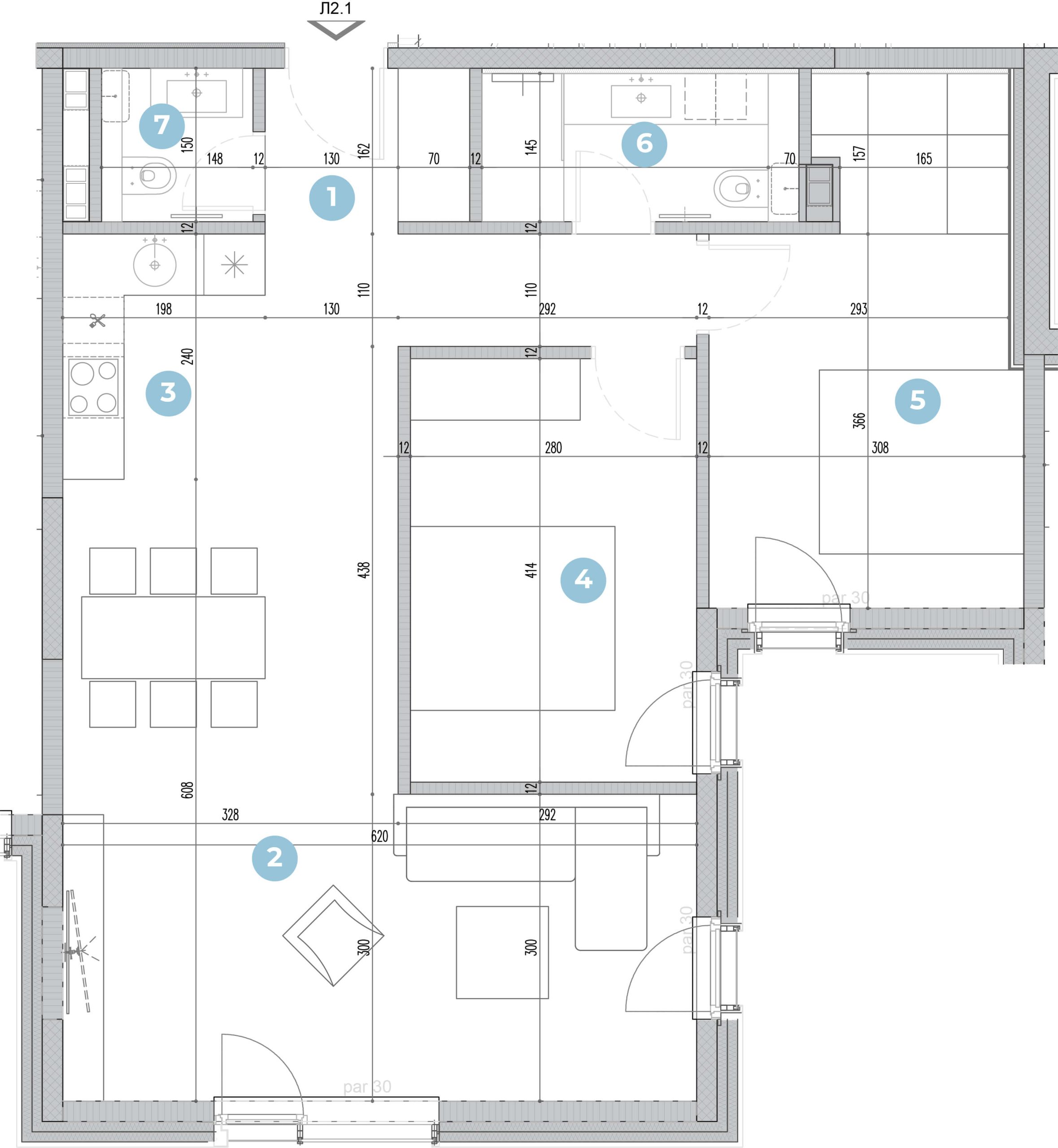
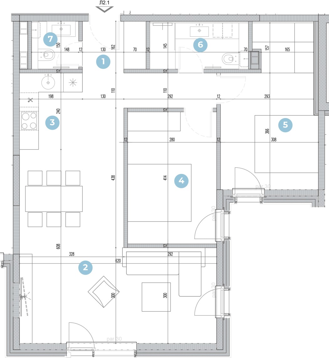
Tip 05
L 2.1 - trosoban
Pozicija stana - Suteren, Prizemlje, Sprat 1, 2, 3, Potkrovlje 1, Potkrovlje 2
Osnova stana
Prostorije
1. HODNIK
7,64 m
2
2. DNEVNI BORAVAK + TRPEZARIJA
29,78 m
2
3. KUHINJA
4,66 m
2
4. SPAVAĆA SOBA
13,61 m
2
5. SPAVAĆA SOBA
11,36 m
2
6. KUPATILO
3,98 m
2
7. TOALET
1,88 m
2
72,92 m
2