Pređi na glavni sadržaj
Preskoči na podnožje
+381 69 30 30 004
English
O nama
Lokacija
Apartmani
Poslovni prostor
Materijali
Sadržaji
Turistički potencijal
Galerija
Kontakt
Investitor
O nama
Lokacija
Apartmani
Poslovni prostor
Materijali
Sadržaji
Turistički potencijal
Galerija
Kontakt
Investitor
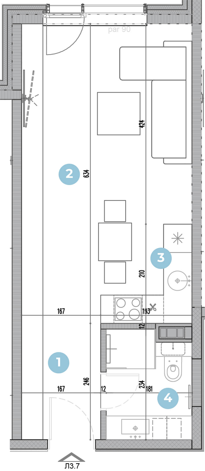
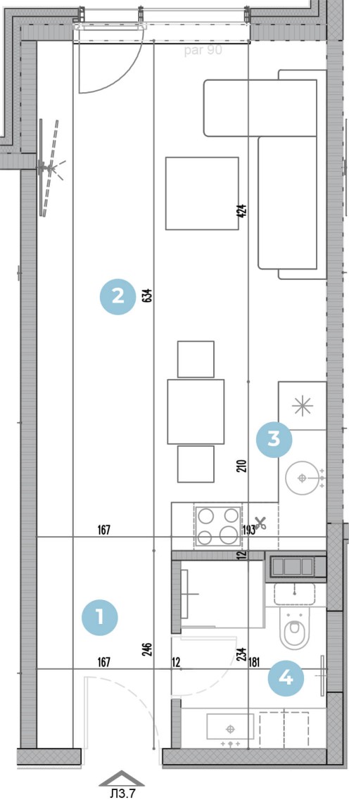
TIP 10a
L 3.7 - jednosoban
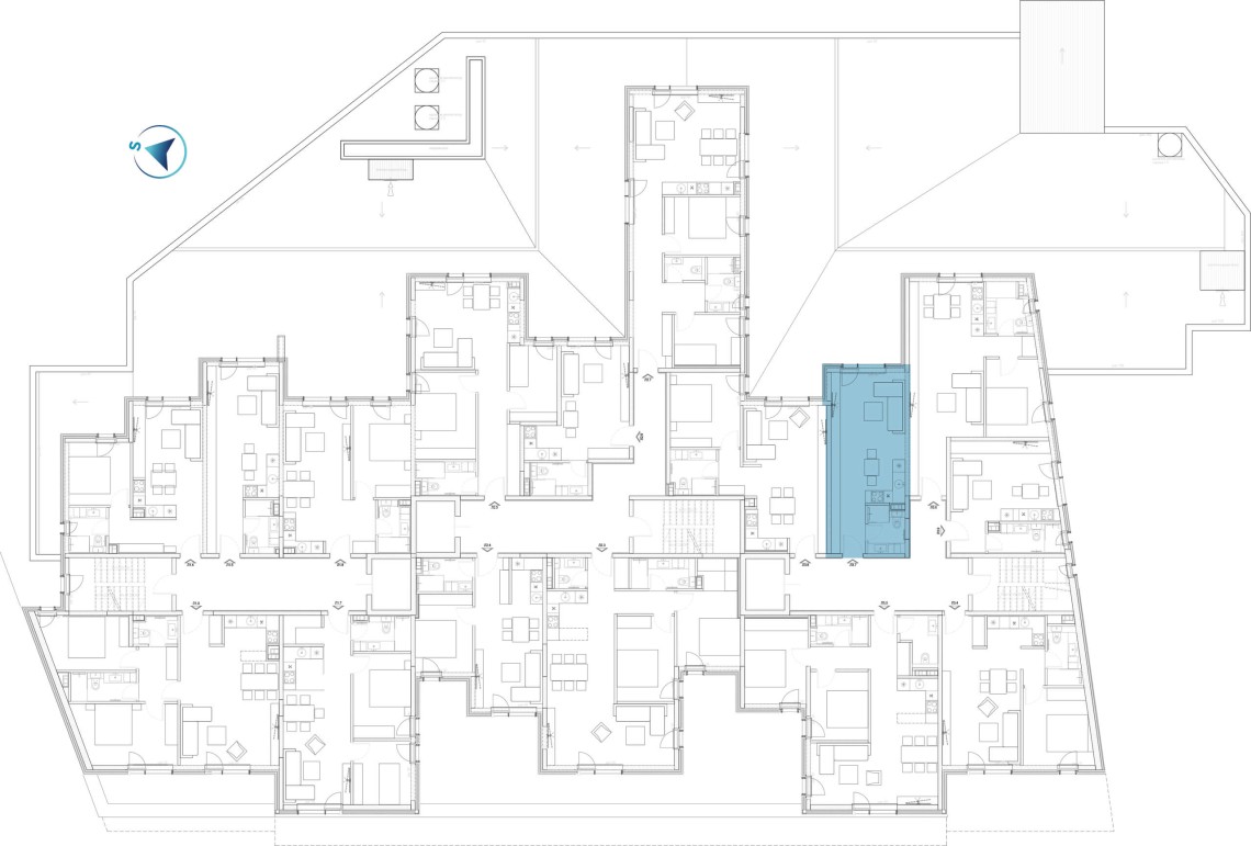
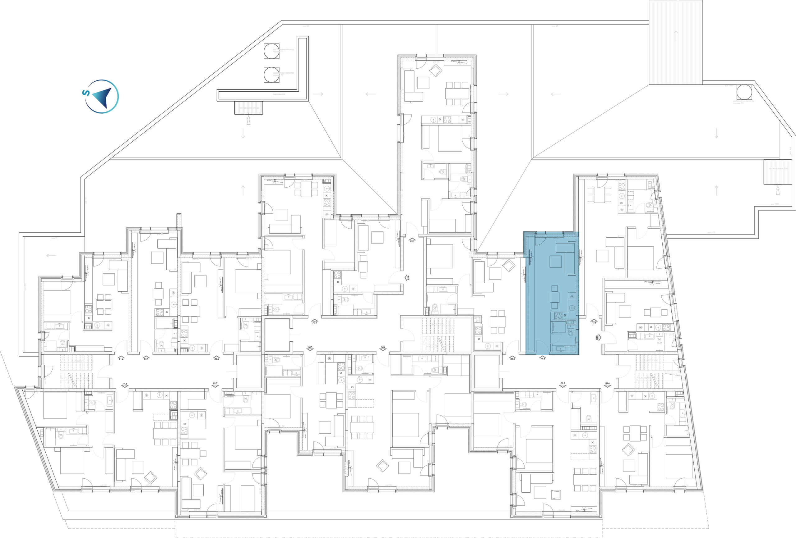
Pozicija stana - Prizemlje
Osnova stana
Prostorije
1. HODNIK
4,03 m
2
2. DNEVNI BORAVAK + TRPEZARIJA
21,24 m
2
3. KUHINJA
1,14 m
2
4. KUPATILO
3,71 m
2
30,11 m
2