Pređi na glavni sadržaj
Preskoči na podnožje
+381 69 30 30 004
English
O nama
Lokacija
Apartmani
Poslovni prostor
Materijali
Sadržaji
Turistički potencijal
Galerija
Kontakt
Investitor
O nama
Lokacija
Apartmani
Poslovni prostor
Materijali
Sadržaji
Turistički potencijal
Galerija
Kontakt
Investitor
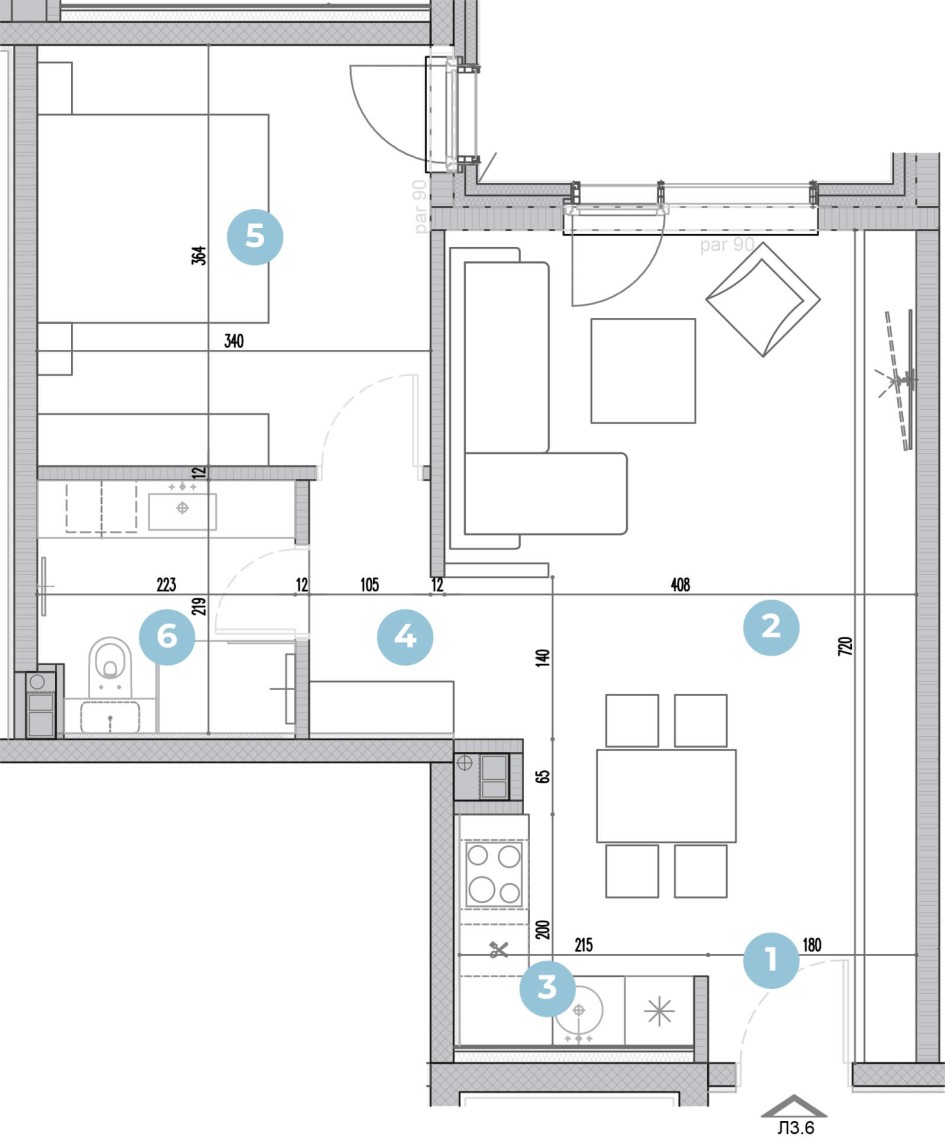
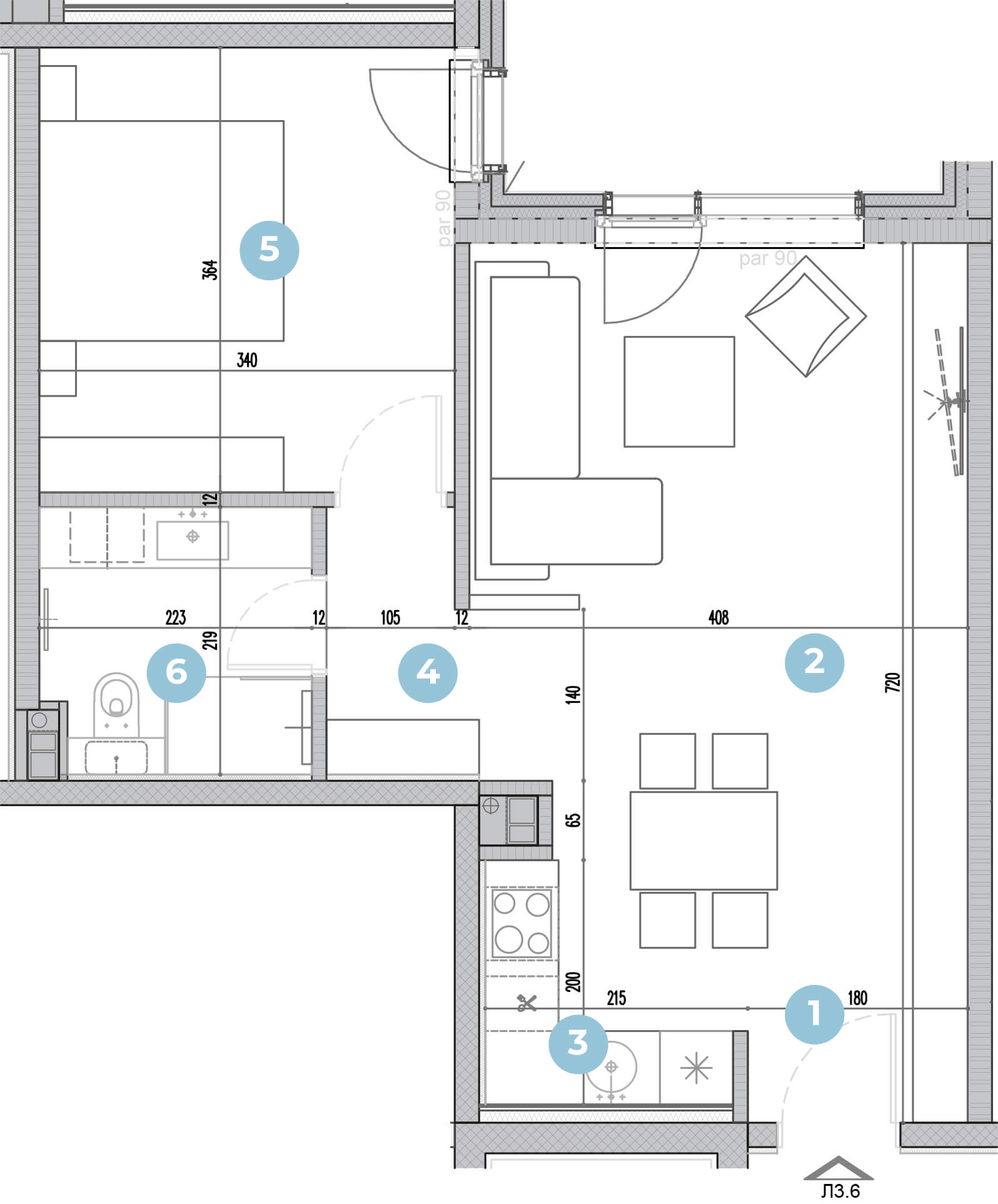
TIP 15
L 3.6 - dvosoban
Pozicija stana - Prizemlje, Sprat 1, 2, 3, Potkrovlje 1
Osnova stana
Prostorije
1. HODNIK
2,65 m
2
2. DNEVNI BORAVAK + TRPEZARIJA
20,90 m
2
3. KUHINJA
4,21 m
2
4. HODNIK
2,41 m
2
5. SPAVAĆA SOBA
12,13 m
2
6. KUPATILO
4,42 m
2
46,72 m
2