Pređi na glavni sadržaj
Preskoči na podnožje
+381 69 30 30 004
English
O nama
Lokacija
Apartmani
Poslovni prostor
Materijali
Sadržaji
Turistički potencijal
Galerija
Kontakt
Investitor
O nama
Lokacija
Apartmani
Poslovni prostor
Materijali
Sadržaji
Turistički potencijal
Galerija
Kontakt
Investitor
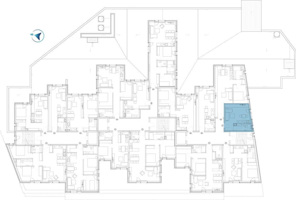
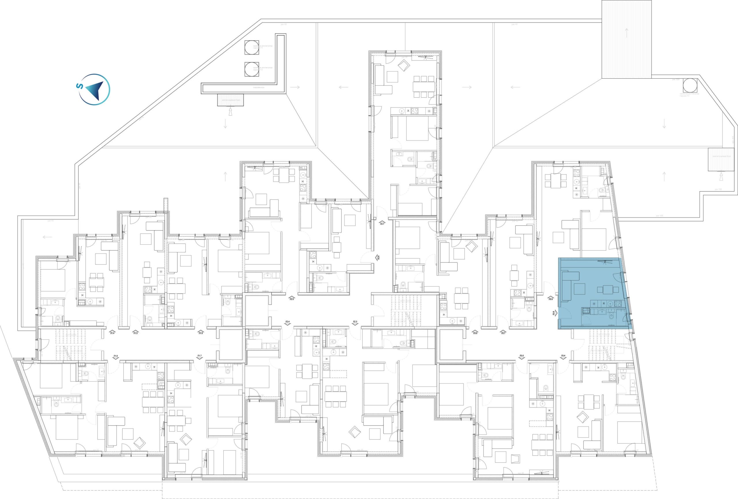
TIP 17
L 3.9 - jednosoban
Pozicija stana - Prizemlje, Sprat 1, 2, 3
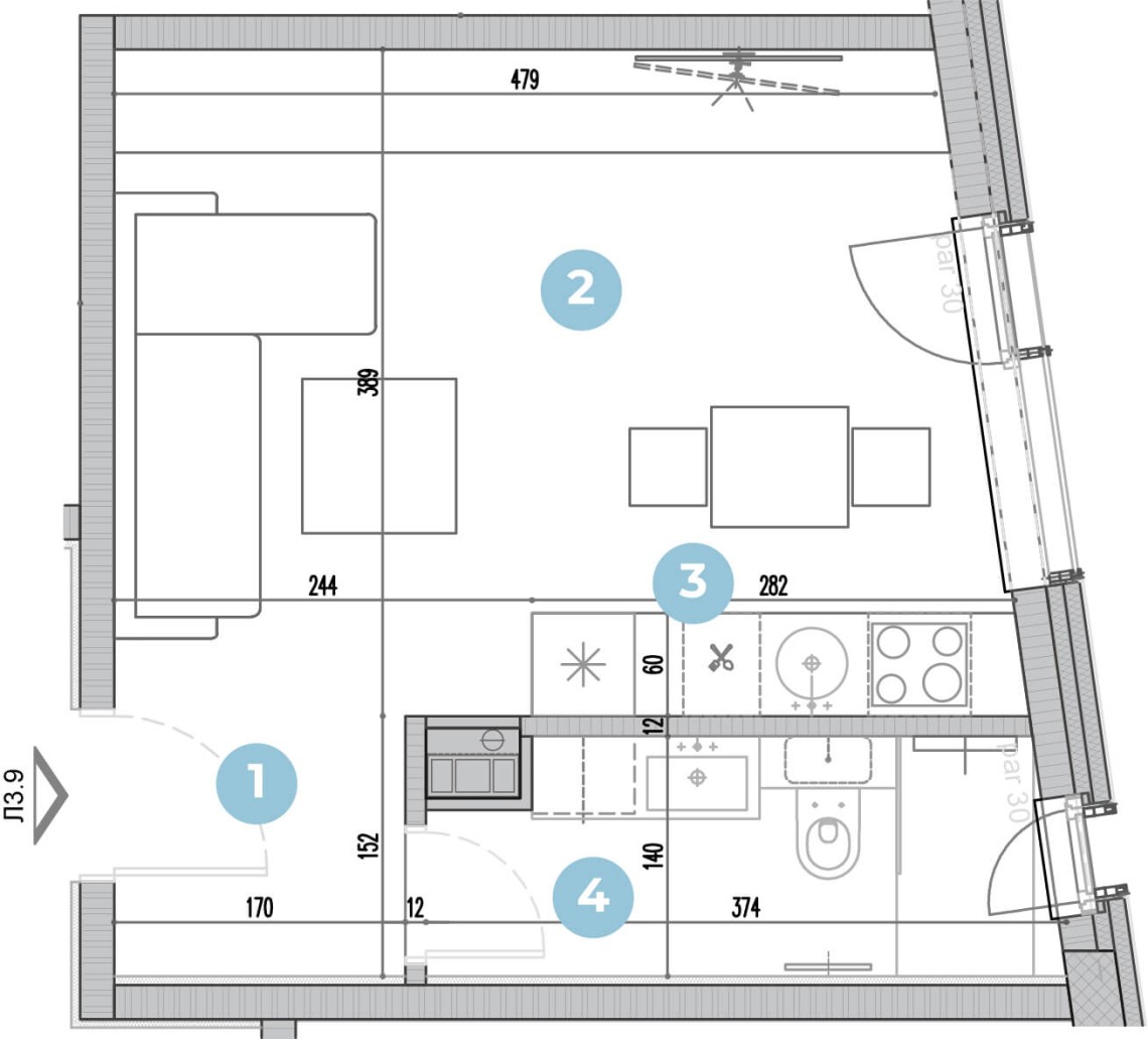
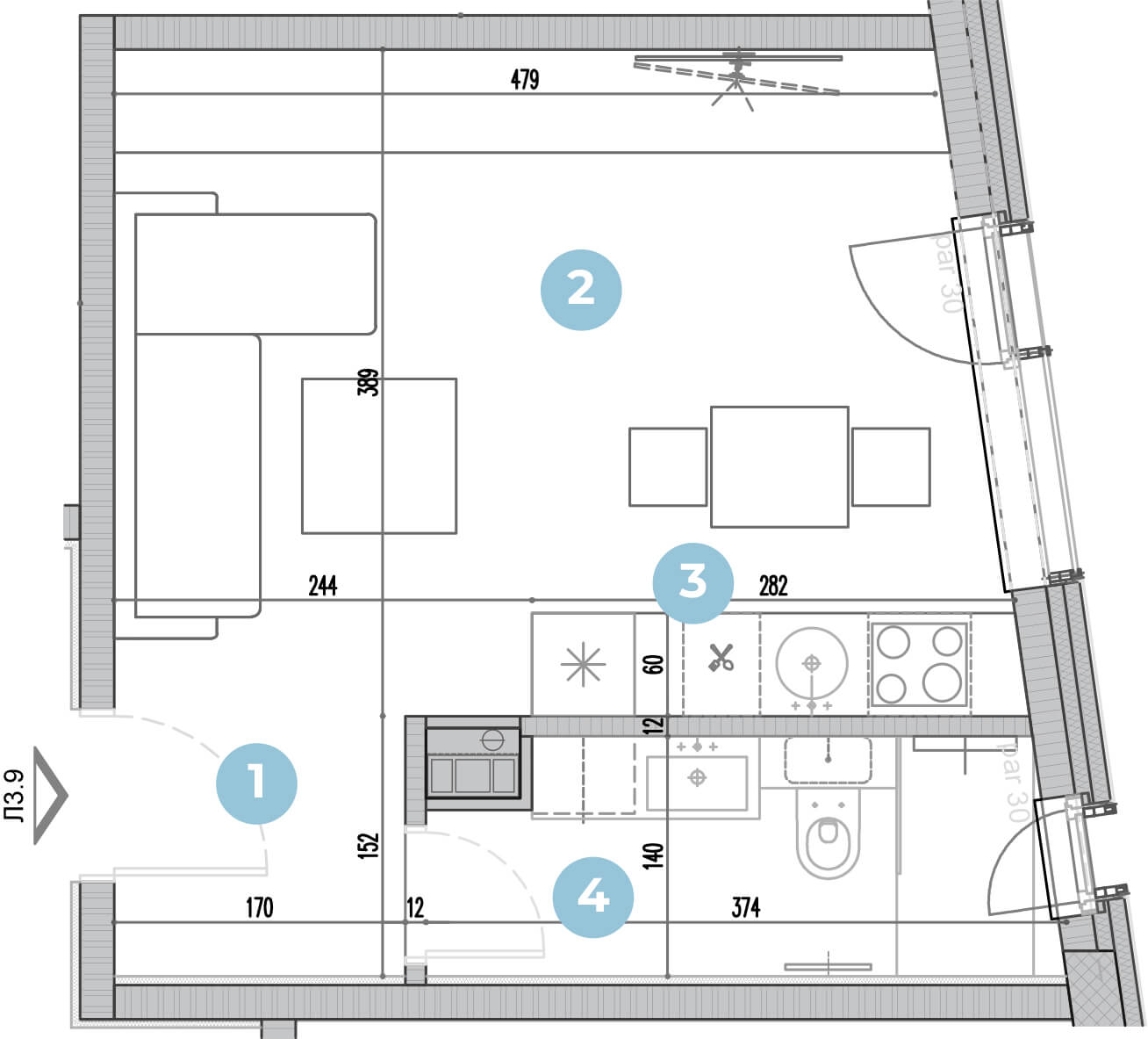
Osnova stana
Prostorije
1. HODNIK
2,53 m
2
2. DNEVNI BORAVAK + TRPEZARIJA
17,64 m
2
3. KUHINJA
1,69 m
2
4. KUPATILO
4,50 m
2
26,36 m
2