Pređi na glavni sadržaj
Preskoči na podnožje
+381 69 30 30 004
English
O nama
Lokacija
Apartmani
Poslovni prostor
Materijali
Sadržaji
Turistički potencijal
Galerija
Kontakt
Investitor
O nama
Lokacija
Apartmani
Poslovni prostor
Materijali
Sadržaji
Turistički potencijal
Galerija
Kontakt
Investitor
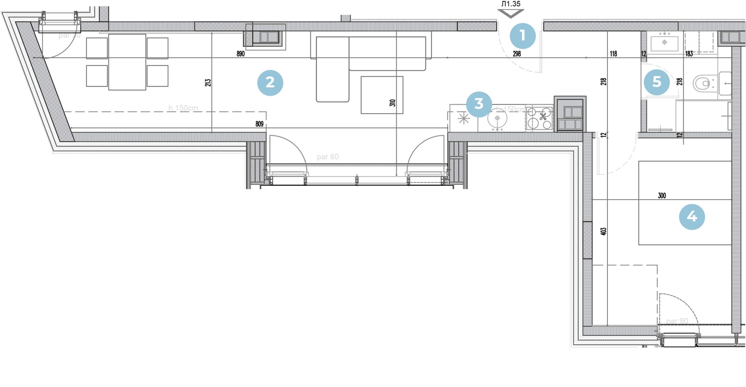
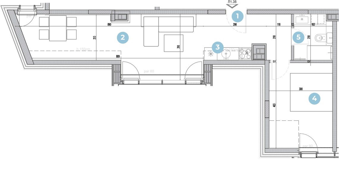
TIP 26
L 1.35 - dvosoban
Pozicija stana - Potkrovlje 3
Osnova stana
Prostorije
1. HODNIK
6,61 m
2
2. DNEVNI BORAVAK + TRPEZARIJA
19,29 m
2
3. KUHINJA
0,75 m
2
4. SPAVAĆA SOBA
11.91 m
2
5. KUPATILO
3,48 m
2
42,03 m
2