Pređi na glavni sadržaj
Preskoči na podnožje
+381 69 30 30 004
English
O nama
Lokacija
Apartmani
Poslovni prostor
Materijali
Sadržaji
Turistički potencijal
Galerija
Kontakt
Investitor
O nama
Lokacija
Apartmani
Poslovni prostor
Materijali
Sadržaji
Turistički potencijal
Galerija
Kontakt
Investitor
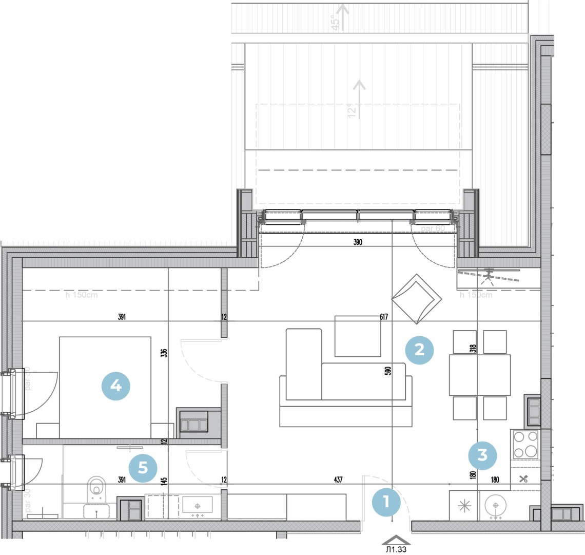
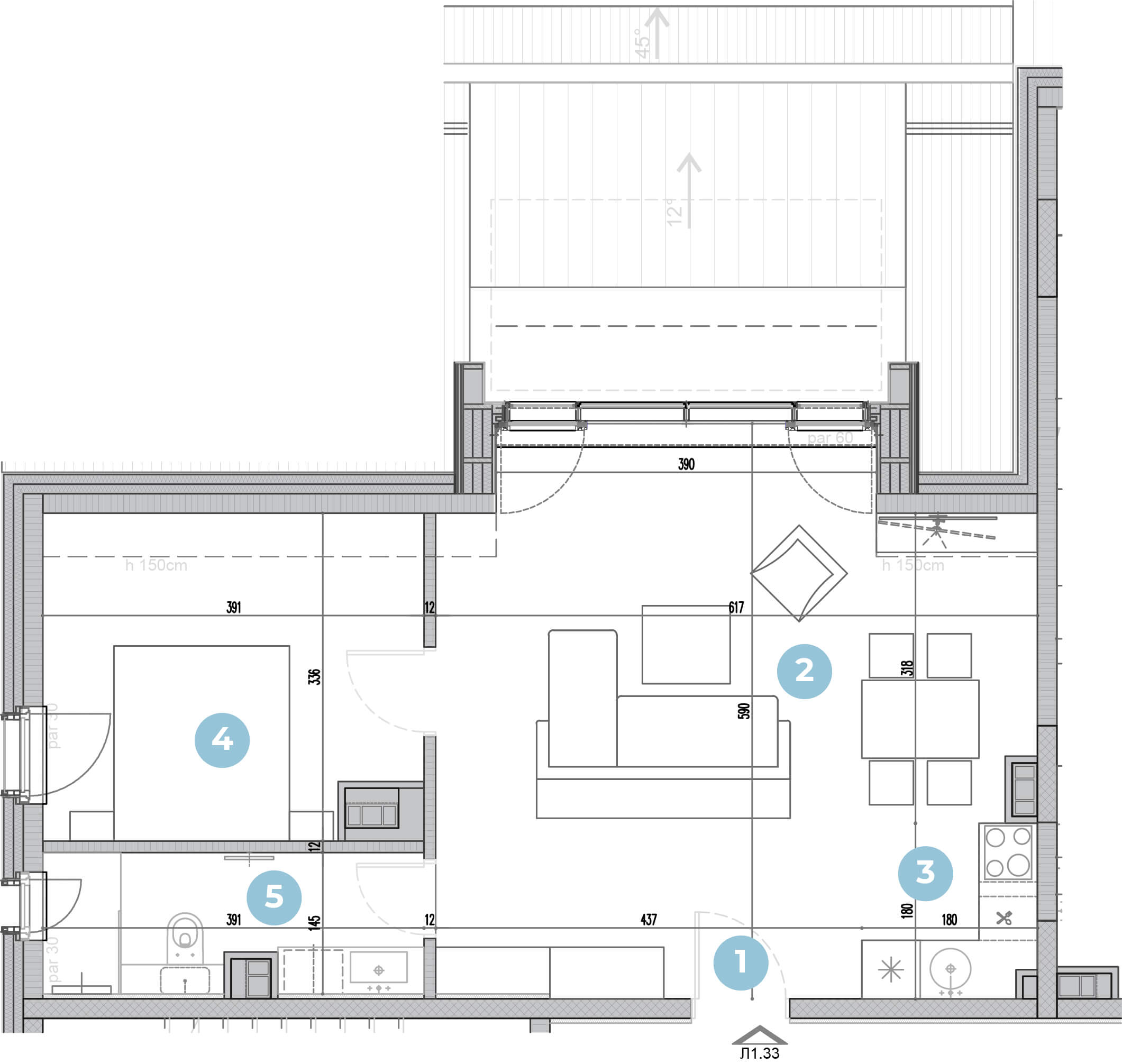
TIP 30
L 1.33 - dvosoban
Pozicija stana - Potkrovlje 3
Osnova stana
Prostorije
1. HODNIK
7,09 m
2
2. DNEVNI BORAVAK + TRPEZARIJA
21,53 m
2
3. KUHINJA
3,68 m
2
4. SPAVAĆA SOBA
10,64 m
2
5. KUPATILO
5,01 m
2
47,95 m
2