Pređi na glavni sadržaj
Preskoči na podnožje
+381 69 30 30 004
English
O nama
Lokacija
Apartmani
Poslovni prostor
Materijali
Sadržaji
Turistički potencijal
Galerija
Kontakt
Investitor
O nama
Lokacija
Apartmani
Poslovni prostor
Materijali
Sadržaji
Turistički potencijal
Galerija
Kontakt
Investitor
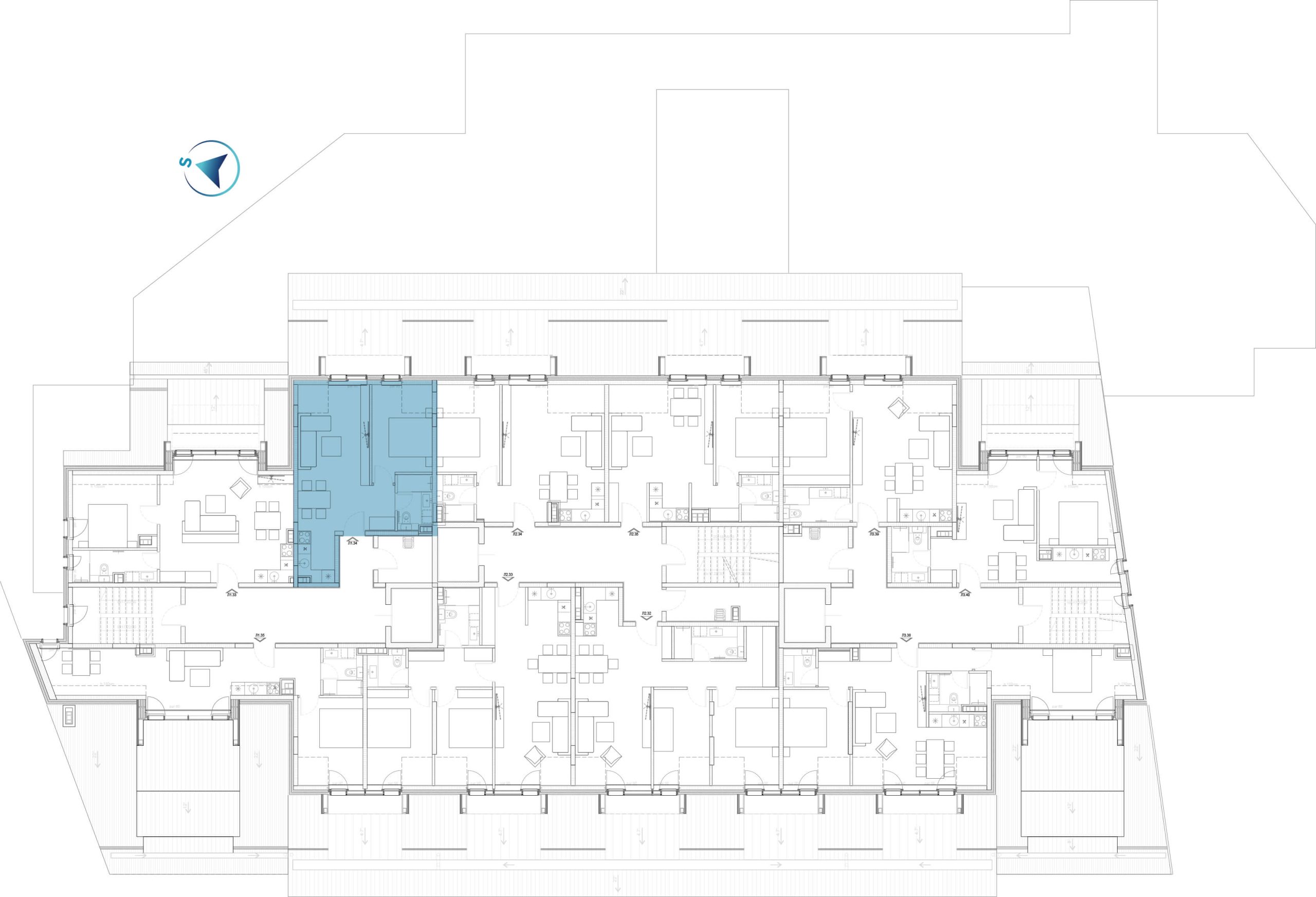
TIP 31
L 1.34 - dvosoban
Pozicija stana - Potkrovlje 3
Osnova stana
Prostorije
1. HODNIK
5,72 m
2
2. DNEVNI BORAVAK + TRPEZARIJA
18,57 m
2
3. KUHINJA
3,78 m
2
4. SPAVAĆA SOBA
11,52 m
2
5. KUPATILO
3,57 m
2
43,17 m
2