Pređi na glavni sadržaj
Preskoči na podnožje
+381 69 30 30 004
English
O nama
Lokacija
Apartmani
Poslovni prostor
Materijali
Sadržaji
Turistički potencijal
Galerija
Kontakt
Investitor
O nama
Lokacija
Apartmani
Poslovni prostor
Materijali
Sadržaji
Turistički potencijal
Galerija
Kontakt
Investitor
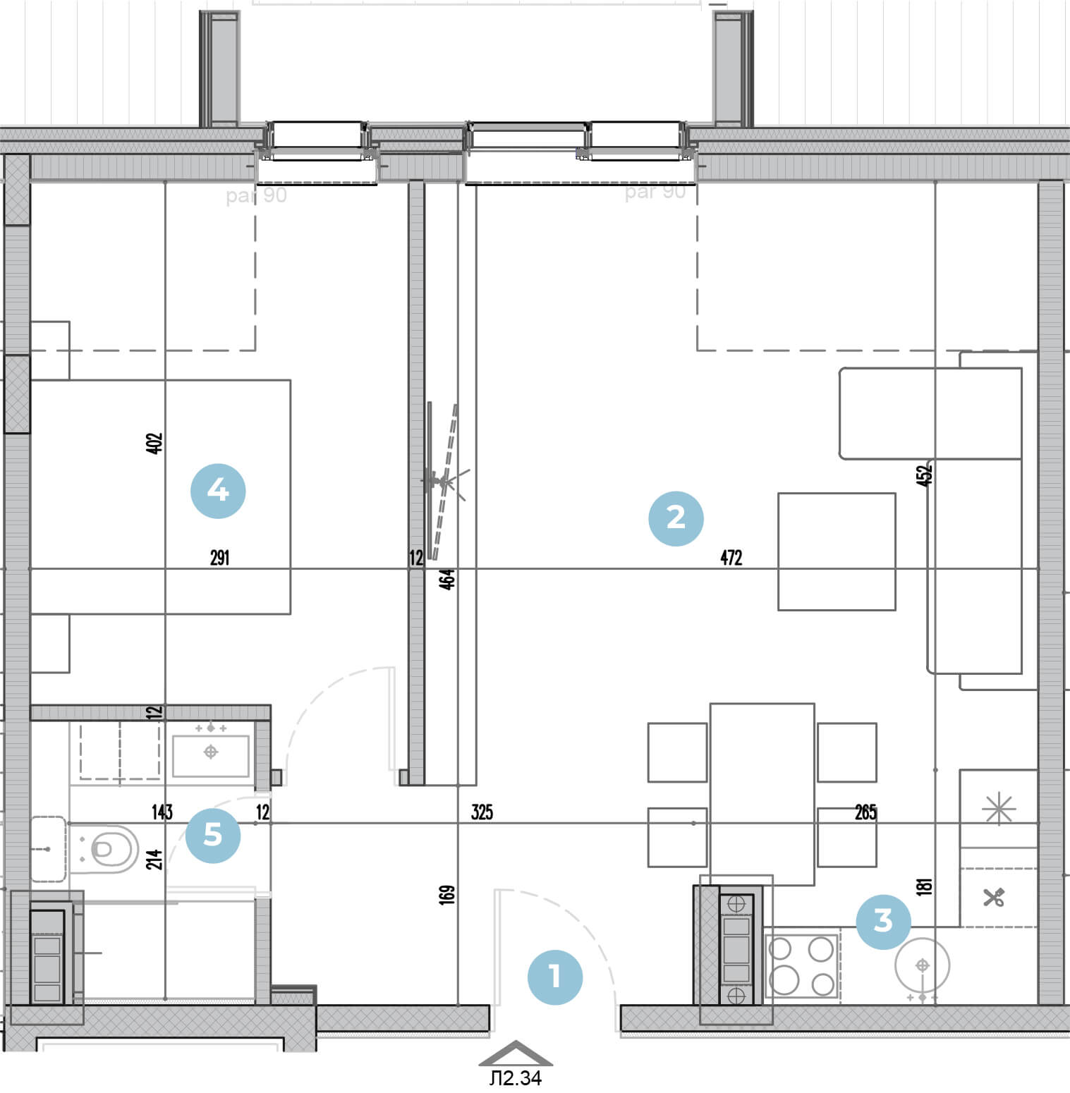
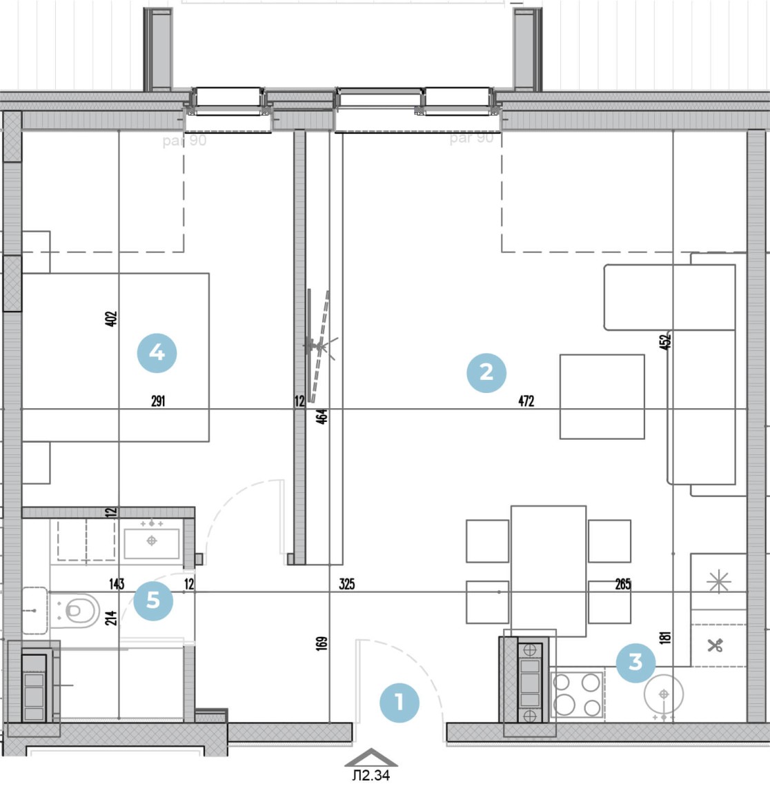
TIP 32
L 2.34 - dvosoban
Pozicija stana - Potkrovlje 3
Osnova stana
Prostorije
1. HODNIK
5,33 m
2
2. DNEVNI BORAVAK + TRPEZARIJA
21,25 m
2
3. KUHINJA
4,22 m
2
4. SPAVAĆA SOBA
12,04 m
2
5. KUPATILO
2,98 m
2
45,82 m
2