Pređi na glavni sadržaj
Preskoči na podnožje
+381 69 30 30 004
English
O nama
Lokacija
Apartmani
Poslovni prostor
Materijali
Sadržaji
Turistički potencijal
Galerija
Kontakt
Investitor
O nama
Lokacija
Apartmani
Poslovni prostor
Materijali
Sadržaji
Turistički potencijal
Galerija
Kontakt
Investitor
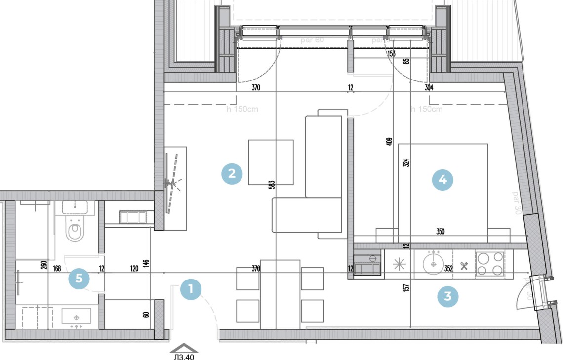
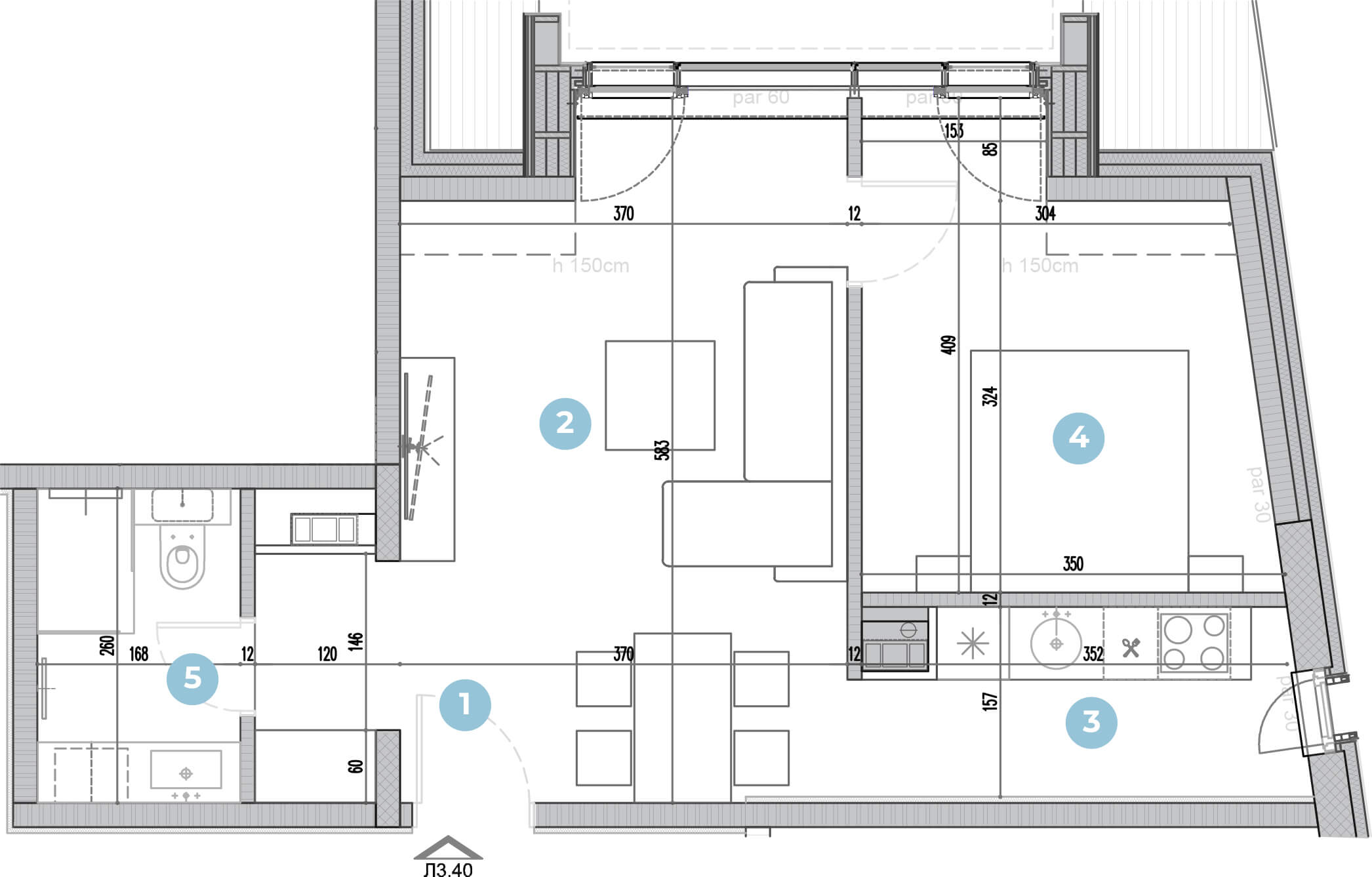
TIP 34
L 3.40 dvosoban
Pozicija stana - Potkrovlje 3
Osnova stana
Prostorije
1. HODNIK
4,47 m
2
2. DNEVNI BORAVAK + TRPEZARIJA
17,04 m
2
3. KUHINJA
5,33 m
2
4. SPAVAĆA SOBA
10,90 m
2
5. KUPATILO
4,05 m
2
41,90 m
2